Close
首頁
房屋出售
房屋出租
社區大樓
土地查詢
委託買賣
公司簡介
精英團隊
不動產知識
google查詢
左營區大樓出售
首頁
房屋出售
房屋出租
社區大樓
土地查詢
委託買賣
公司簡介
精英團隊
不動產知識
google查詢
首頁
›
房屋出售
›
高雄電梯大樓
›
左營電梯大樓
›
左營區大樓出售
左營區大樓出售|左營區大樓左營軍港左營買屋左營房屋
售
悅誠|高樓景觀|三房平車
列印
售1398萬
售1360萬
類型:
大樓
總登記坪數:
41.786坪
每坪單價:
32.55萬/坪
地址:
高雄市左營區桃子園路
鍾溫雅(阿雅)
(煩請告知聯絡人,您是在House-Info房屋網看到廣告,感恩幫忙)
0935-311-298
市話:
07-3150808 或0935-311-298
公司名稱:
永義房屋 高雄美術擁樂加盟店
公司地址:
高雄市鼓山區美術東二路530號
我要留言
加LINE好友
物件介紹
詳細資料
銷售狀態
:
帶看中
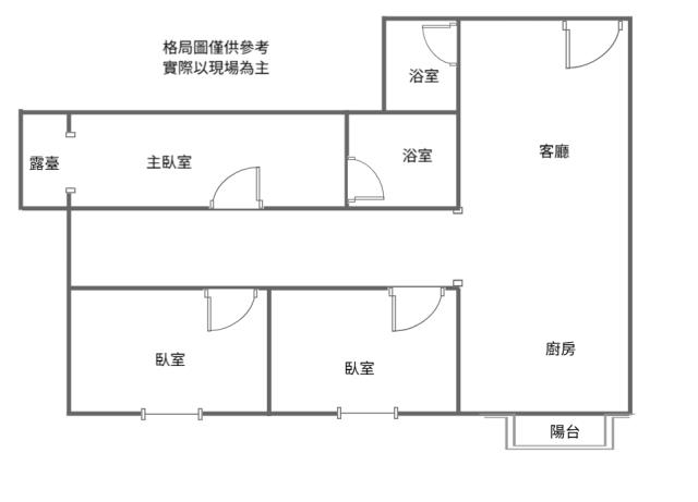
格局
:
3房,2廳,2衛,2陽台,1廚房
屋齡
:
5年
車位
:
坡道式平面車位
座向
:
朝西北
無障礙環境
:
有
所在樓層
:
13樓 / 共18樓
管理費
:
2698元/月
管委會
:
有
中庭
:
有
電梯
:
有
面前道路
:
15米
是否凶宅
:
不是
瀏覽人次
:
69人次
周邊環境
生活機能
:
佳
鄰近交通
:
便捷
鄰近地標
:
左營軍港
公園綠地
:
社區公園
鄰近學區
:
永清國小
捷運站
:
巨蛋
坪數說明
建物登記總坪數
:
41.786
主建物
:
18.322
附屬建物
:
5.599
公共設施
:
12.992
停車位
:
4.872
土地登記總坪數
:
4.774
特色描述
★ 屋主一手屋,全室系統裝潢
★ 正三房格局,大露臺設計,視野遼闊,採光與通風絕佳
★ 一樓商家林立,7-11、全家、餐廳,應有盡有
★ 公設齊全,健身房、KTV、游泳池
★ 近中華一路、國一及國十,南北交通便利
-------------------------------------------------------
興富發-悅誠
總戶數:702戶
第四種住宅區
土地:持分
陽台:2.1坪 雨遮:0.69坪
高雄左營大樓-0
高雄左營大樓-1
高雄左營大樓-2
高雄左營大樓-3
高雄左營大樓-4
高雄左營大樓-5
高雄左營大樓-6
高雄左營大樓-7
高雄左營大樓-8
高雄左營大樓-9
高雄左營大樓-10
高雄左營大樓-11
高雄左營大樓-12
物件地圖
到Google查看地圖
到Google查看街景
物件留言
請注意,如果您詢問的內容與物件不相符合或是廣告,經過審核,系統將會直接刪除您的發問內容
相似物件
左營
售1058萬
左營區文川路
類型:大樓
坪數:24.584坪
格局:2房
左營
售1138萬
左營區介壽路
類型:大樓
坪數:33.911坪
格局:3房
左營
售1250萬
左營區立大路
類型:大樓
坪數:41.748坪
格局:3房
左營
售568萬
左營區立道路
類型:大樓_套房
坪數:15.41坪
格局:1房
左營
售2998萬
左營區新莊一路
類型:大樓
坪數:88.032坪
格局:3房
左營
售1288萬
左營區至聖路
類型:大樓_華廈
坪數:41.352坪
格局:3房
住宅分類
左營公寓
左營電梯大樓
左營大樓建案
左營華廈
左營套房
左營透天
左營透天厝
左營透天別墅
左營透天建案
左營農舍
左營別墅
左營一樓
左營工業住宅
左營店面
左營廠房
左營工業廠房
左營廠辦
左營商辦
左營辦公室
左營倉庫
免責聲明:House-Info房屋網平台系統為租用式開放房屋買賣網站建置平台,僅提供會員查詢-
高雄市
,
左營區
,
大樓
-等房屋資訊參考,並不涉入任何諮詢、交易。 物件(服務)聯絡人公佈的資訊、文字、照片、圖形、產權、廣告內容、或其他資料若有不實或違法情事,或與客戶聯絡交易過程中若衍生民事或刑事等法律問題,皆與House-Info房屋網站無關,所有商標、文章、名稱等版權,皆歸屬原著作者所有!
高雄房屋
|
高雄市房子
|
高雄房子
|
買高雄房屋
|
高雄市房屋
|
高雄買房子
資料處理中,請稍後...