Close
首頁
房屋出售
房屋出租
社區大樓
土地查詢
委託買賣
公司簡介
精英團隊
不動產知識
google查詢
三民區大樓出售
首頁
房屋出售
房屋出租
社區大樓
土地查詢
委託買賣
公司簡介
精英團隊
不動產知識
google查詢
首頁
›
房屋出售
›
高雄電梯大樓
›
三民區電梯大樓
›
三民區大樓出售
三民區大樓出售|三民買屋三民賣屋三民大樓三民房屋三民店面
售
高醫學⼦搖籃|窗明几淨大二房
列印
售898萬
類型:
大樓
總登記坪數:
24.125坪
每坪單價:
37.22萬/坪
地址:
高雄市三民區民族巷
鍾溫雅(阿雅)
(煩請告知聯絡人,您是在House-Info房屋網看到廣告,感恩幫忙)
0935-311-298
市話:
07-3150808 或0935-311-298
公司名稱:
永義房屋 高雄美術擁樂加盟店
公司地址:
高雄市鼓山區美術東二路530號
我要留言
加LINE好友
物件介紹
詳細資料
銷售狀態
:
帶看中
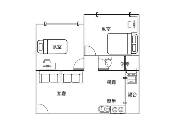
格局
:
2房,2廳,1衛,1陽台,1廚房
屋齡
:
18年
車位
:
沒車位
座向
:
朝東
無障礙環境
:
有
所在樓層
:
10樓/共15樓
管理費
:
1447元/月
管委會
:
有
中庭
:
有
電梯
:
有
面前道路
:
8米
是否凶宅
:
不是
瀏覽人次
:
4人次
周邊環境
生活機能
:
佳
鄰近交通
:
便捷
鄰近地標
:
高醫、十全菓菜市場
公園綠地
:
社區公園
鄰近學區
:
高雄醫學大學
捷運站
:
後譯
坪數說明
建物登記總坪數
:
24.125
主建物
:
15.893
附屬建物
:
1.546
公共設施
:
6.686
土地登記總坪數
:
1.767
特色描述
★屋況維持非常良好 無老舊裝潢
★空間搭配勻稱 房間都可放下雙人床
★衛浴開窗 乾溼分離 無浪費走道空間
★超低公設比27% 錢花在最實在的地方
★鄰近黃線預定建工及民族Y9站
★機車位半年一抽(1&7月抽)
----------------
崑庭建設-棋琴七重奏
總戶數260
土地-持分
第五種商業區
陽台-1.11坪
雨遮-0.43坪
三民區大樓-0
三民區大樓-1
三民區大樓-2
三民區大樓-3
三民區大樓-4
三民區大樓-5
三民區大樓-6
三民區大樓-7
三民區大樓-8
三民區大樓-9
三民區大樓-10
三民區大樓-11
三民區大樓-12
三民區大樓-13
三民區大樓-14
物件地圖
到Google查看地圖
到Google查看街景
物件留言
請注意,如果您詢問的內容與物件不相符合或是廣告,經過審核,系統將會直接刪除您的發問內容
相似物件
三民區
售1768萬
三民區民族一路
類型:大樓
坪數:46.937坪
格局:3房
三民區
售988萬
三民區大順二路
類型:大樓
坪數:39.819坪
格局:3房
三民區
售1698萬
三民區天祥一路
類型:大樓
坪數:50.803坪
格局:3房
三民區
售998萬
三民區覺民路
類型:大樓
坪數:35.283坪
格局:2房
三民區
售1950萬
三民區博愛一路
類型:大樓
坪數:44.15坪
格局:3房
三民區
售1676萬
三民區天祥二路
類型:大樓
坪數:46.433坪
格局:3房
住宅分類
三民區電梯大樓
大社電梯大樓
大寮電梯大樓
大樹電梯大樓
小港電梯大樓
仁武電梯大樓
內門電梯大樓
六龜電梯大樓
左營電梯大樓
永安電梯大樓
田寮電梯大樓
甲仙電梯大樓
杉林電梯大樓
那瑪夏電梯大樓
岡山電梯大樓
林園電梯大樓
阿蓮電梯大樓
前金電梯大樓
前鎮電梯大樓
美濃電梯大樓
茄萣電梯大樓
茂林電梯大樓
苓雅電梯大樓
桃源電梯大樓
梓官電梯大樓
鳥松電梯大樓
湖內電梯大樓
新興區電梯大樓
楠梓電梯大樓
路竹電梯大樓
鼓山電梯大樓
旗山電梯大樓
旗津電梯大樓
鳳山電梯大樓
橋頭電梯大樓
燕巢電梯大樓
彌陀電梯大樓
鹽埕電梯大樓
免責聲明:House-Info房屋網平台系統為租用式開放房屋買賣網站建置平台,僅提供會員查詢-
高雄市
,
三民區
,
大樓
-等房屋資訊參考,並不涉入任何諮詢、交易。 物件(服務)聯絡人公佈的資訊、文字、照片、圖形、產權、廣告內容、或其他資料若有不實或違法情事,或與客戶聯絡交易過程中若衍生民事或刑事等法律問題,皆與House-Info房屋網站無關,所有商標、文章、名稱等版權,皆歸屬原著作者所有!
高雄房屋
|
高雄市房子
|
高雄房子
|
買高雄房屋
|
高雄市房屋
|
高雄買房子
資料處理中,請稍後...